VOR_foto_vorplatz_nordwest
VOR_foto_vogelperspektive
VOR_foto_vorplatz_tiefer_blickpunkt
VOR_axonometrie
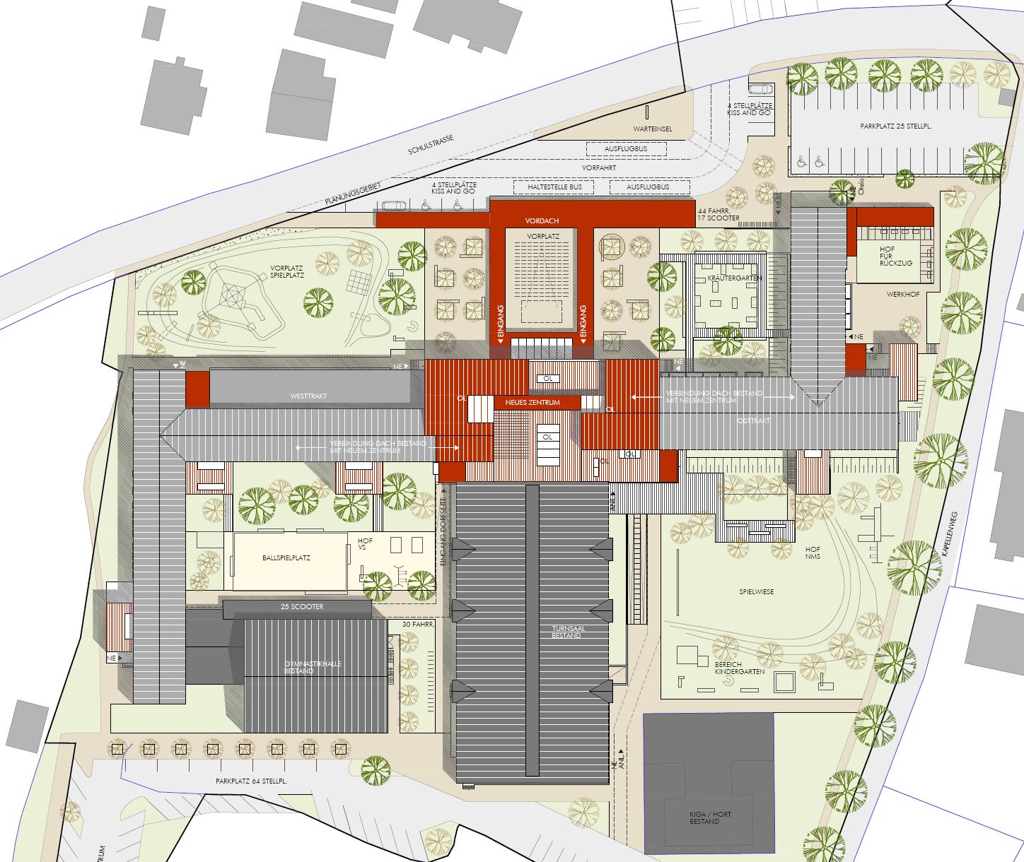
VOR_lageplan
VOR_konzept
VOR_schnitt
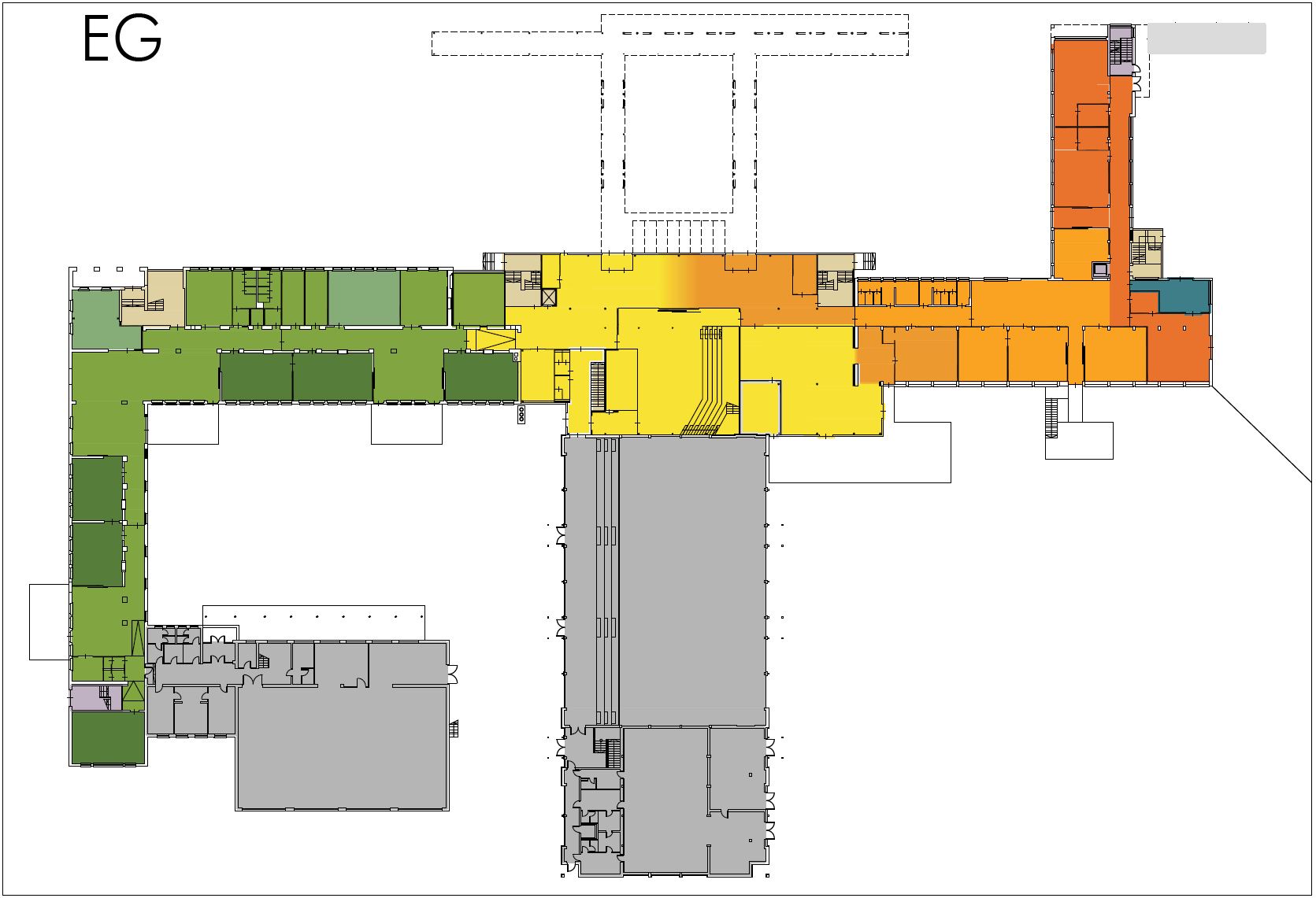
VOR_grundriss_EG
VOR_grundriss_OG

Wettbewerb Bildungscampus Vorchdorf / OÖ

Aus dem Eräuterungsbericht zum Wettbewerb:

Der Schulstandort Vorchdorf soll durch eine räumliche Erneuerung zum „Bildungscampus Vorchdorf“ werden.
Dazu soll die in mehreren Baustufen errichtete Schulanlage, bestehend aus der Volksschule, der Neuen Mittelschule sowie der Polytechnischen Schule, umgebaut werden.

ZIELVORSTELLUNG

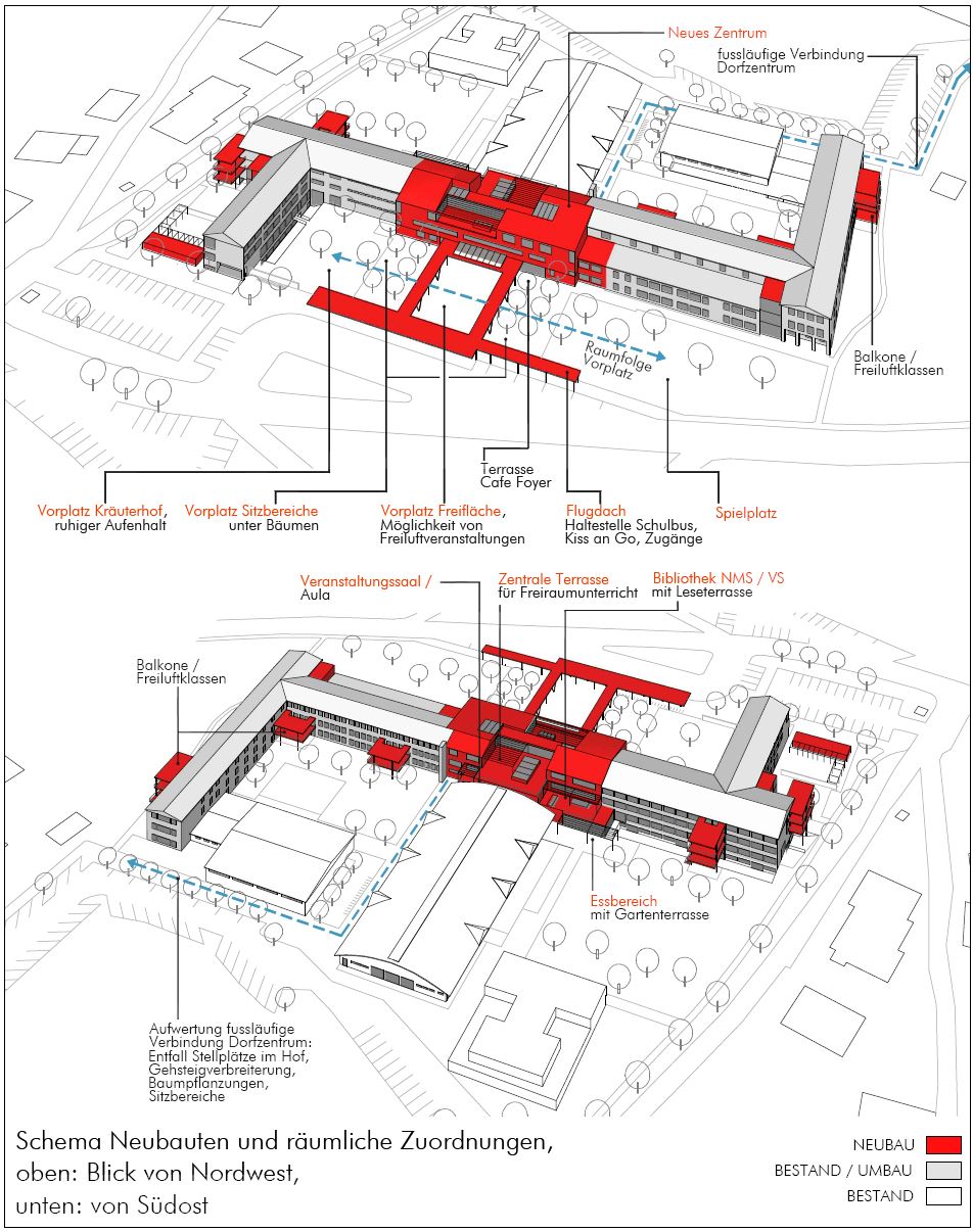
DerUmbau soll durch die Schaffung eines „Neuen Zentrums“ und der Bildungscluster eine zeitgemässe räumliche Erneuerung gewährleisten.
Das hier dargestellte Projekt sieht dazu folgende wesentliche Maßnahmen vor:

NEUER VORPLATZ

Der neue Vorplatz wird durch den Abbruch des in der ersten Bauphase entstandenen Mitteltraktes zu einem großen zusammenhängenden Bereich umgestaltet, der alle Ankommenden mit einer einladenden Geste durch das den Raum gliedernden, weit ausladenden Vordaches empfängt.
Die zwei zum Schulgebäude hin laufenden Teile des Vordaches gliedern den Raum zwischen Schulstraße und Schulgebäude in drei Bereiche mit unterschiedlichen Qualitäten:
– den eigentlichen Vorplatz, der unverbaut bleibt und daher vielen Nutzungen dienen kann, wie z. B. Freiluftveranstaltungen,
Filmvorführungen, Märkten etc., und gleichzeitig einen räumlichen Auftakt für das „Neue Zentrum des Bildungscampus bildet,
– den Spielplatz auf der Westeite des Vorplatz, mit einem Angebot an diversen Spielgeräten für verschiedene Altersgruppen,
– den ostseitigen Kräutergarten, der aufgrund seiner Gestaltung auch als Bereich für Aufenthalt und Ruhe dienen kann.
Angelagert an die zwei zu den Haupteingängen verlaufenden Teile des Vordaches gibt es zu beiden Seiten Bereiche, die mit Sitzgelegenheiten unter Bäumen ausgestattet sind. Diese dienen als weiterer Filter zwischen den drei Bereichen. Hier befindet sich auch ein kleiner Gastgarten für das Cafe im neuen Foyer, in direkter Nähe zum Kleinkinder Spielbereich des westseitigen Spielplatzes.

NEUES ZENTRUM

Vom Vorplatz aus betritt man das Foyer des Neuen Zentrums. Dieses soll anstelle des vorhin bereits erwähnten Mitteltraktes sowie des ebenfalls dort befindlichen Gebäudes der Musikschule errichtet werden.
Das Foyer beinhaltet das Empfangspult mit zugeordneter Info Wand, eine Cafeteria sowie das Büro des Schulwartes. Zudem münden hier sämtliche Erschließungsachsen der sich zu beiden Seiten des Neuen Zentrums befindenden Bestandsgebäude. Zwei neue Stiegenhäuser und ein Lift gewährleisten die Verbindung zu den oberen 2 Geschoßen.
An das Foyer direkt anschließend befindet sich die Aula bzw. der Veranstaltungssaal, der eigentliche Mittelpunkt des gesamten Bildungscampus. Es ist der einzige Raum des Bildungscampus mit doppelter Raumhöhe, die zudem auch von zwei Galerien aus erlebbar wird.
Durch große Schiebetüren läßt sich der Saal mit dem Foyer verbinden bzw. von diesem abtrennen. Sitzstufen und eine Bühne gewährleisten eine Vielzahl von möglichen Nutzungen für Veranstaltungen, Vorträge, Konzerte etc. Während der übrigen Zeit wird der Saal bei geöffneten Schiebewänden zur Allgemeinfläche für Schüler und Lehrer des Bildungscampus.

BILDUNGSCLUSTER

Die Organisation der Cluster sieht die Marktplätze an den Kreuzungspunkten der jeweiligen Bestandstrakte, die jeweils in zwei Richtungen orientierte Flügel aufweisen, vor. Die längeren Flügel des Westtraktes erhalten zudem Nebenzentren, um eine vielfältige Nutzung der tieferen Bereiche der Bestandstrakte zu gewährleisten. Die Marktplätze bieten unterschiedliche räumliche Qualitäten: Teilbereiche dienen vor allem Gruppenaktivitäten bis hin zur Möglichkeit kleinerer Veranstaltungen, andere Bereiche wiederum sind dem Rückzug oder individuellen Tätigkeiten vorbehalten. Bewegliche, von der Decke hängende Paravents ermöglichen hier eine zusätzliche Abschirmung. Durch Schiebewände und Verbindungstüren wird eine Vielzahl von Raumkonstellationen der Bildungsräume zu den Marktplätzen bzw. Nebenzentren hin möglich sein.

FREIBEREICHE

Die Freibereiche werden je nach Größe und Lage unterschiedlich behandelt. Die größeren, offenen Bereiche im Nordwesten und Südosten werden durch durch neue Baumflanzungen räumlich gefasst und Bereiche (Kleinkinderspielplatz Vorplatz und Bereich Kindergarten im Hof der NMS) zusätzlich durch die Modellierung der Landschaft gegliedert. Die kleineren Bereiche orientieren ihre Gestaltung an den Richtungen der umgebenden Gebäude.
Folgende Angebote stehen zur Verfügung:

KONSTRUKTION

Als Konstruktion des Neuen Zentrums wird eine Massivholzbauweise vorgeschlagen. Die Bauweise kommt auch in der Gestaltung der Fassade durch die unbehandelte Holzverschalung und durch ebenfalls unbehandelte Holzoberflächen im Inneren des Gebäudes zum Ausdruck. Das stellt das Neue Zentrum auch atmosphärisch in Kontrast zum Bestand.

Jahr:

2018

Architekt:

Michael Katt, Oliver Groh

Kategorien:

2018, Groh, Katt, Schulbau, Wettbewerb